We understand architecture
as an aesthetical practice
that drives a potentially
transforming force

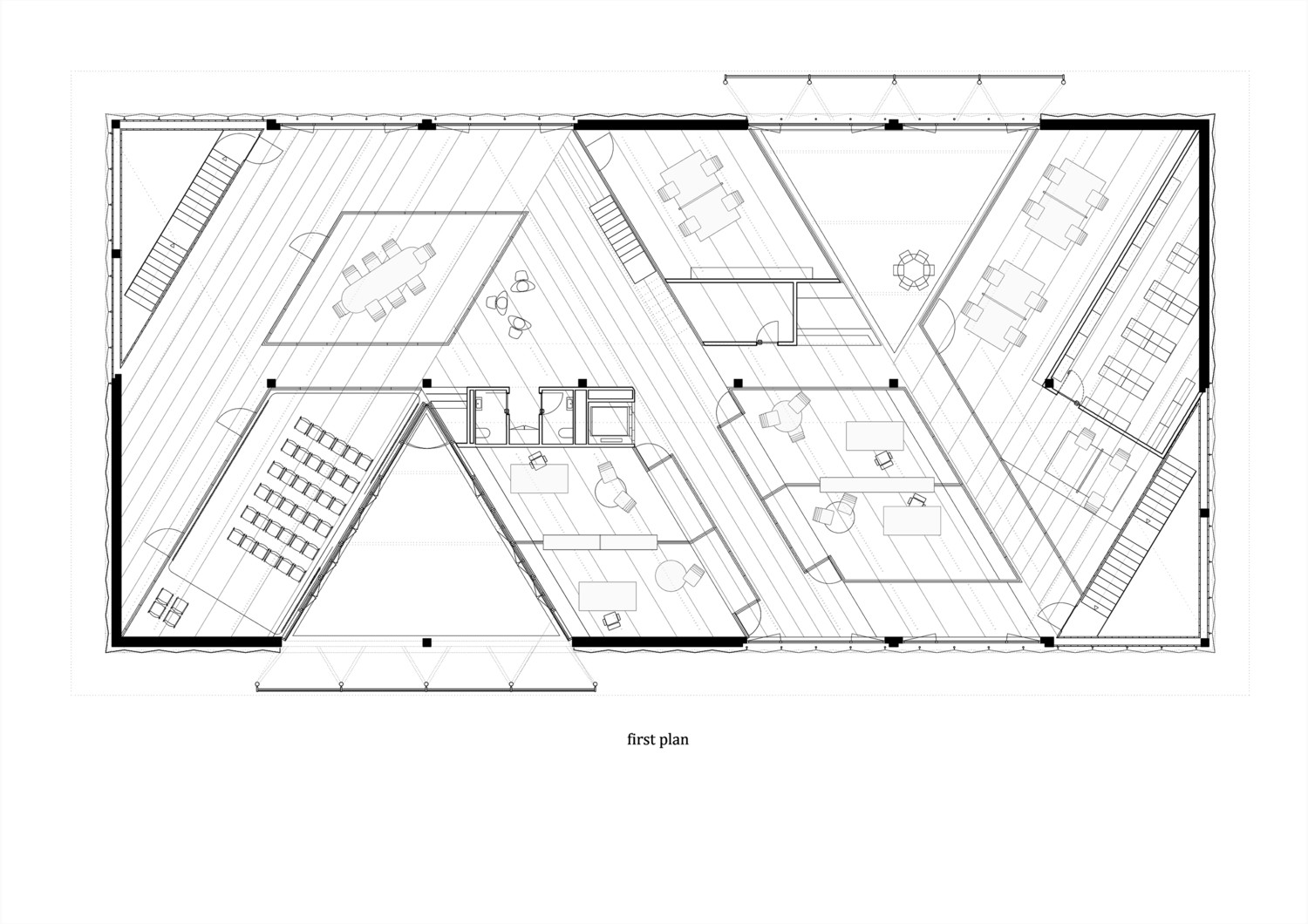
EIBHO Headquarters

2025
  • Location: Berriz, Bizkaia
  • Client: Aluminios Eibar
  • Date: 2018 -
  • Principal Architect: AZAB Cristina Acha, Miguel Zaballa
  •                                   Ane Arce, Iñigo Berasategui
  • Structural Architec: Iñigo Ibañez
  • Services Engineer: Unai Martínez de la Hidalga
  • Photographs: Luis Díaz Díaz

Utilizamos cookies propias y de terceros para mejorar tu accesibilidad, personalizar y analizar tu navegación. Al continuar navegando consideramos que aceptas su instalación. Puedes cambiar la configuración u obtener más información en nuestra cookies policy