We understand architecture
as an aesthetical practice
that drives a potentially
transforming force

RE-House Txorisolo etxea

2024
  • Location: Loiu, Bizkaia
  • Client: Private
  • Date: 2018 -
  • Principal Architect: AZAB  Cristina Acha, Miguel Zaballa, Ane Arce, Iñigo Berasategui
  • Contractors: AZAB
  • Photographs: Luis Díaz Díaz

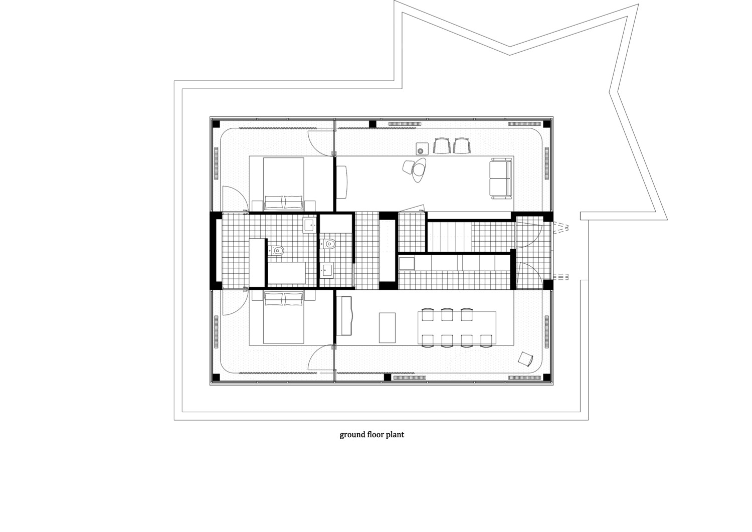
Re-House is the result of the reform of an agricultural house in the 80s for its conversion into a dual home for its owners, an older couple and their daughter. Located in the hinterland of Bilbao, in that neither rural nor urban area, the construction must readjust and combine the agricultural work activity of the couple with the telework of their daughter dedicated to job mentoring, and at the same time respond to the future with optimism by solving a home adapted with which to wait for old age at ground level.

How to look beyond the idealized falsification of the urbanite on the countryside, how to establish a complex and uncomplexed relationship, devoid of useful fictions, who looks at his environment with impudence and disinhibition, forgetting protocols, aesthetic codes or prejudices. The bet is to navigate between the infiltration and the contrast with the environment with a dual, distorting and positivist action. Thus, a clear, abstract and artificial architecture is proposed, but also complicit, open to the environment and impure in that strange miscegenation that Manuel Gausa describes between intrusion and interference.

Thus, the project occupies the ground floor, previously intended for agricultural storage, and the first floor through a double housing program that seeks in their antagonistic definitions a certain complementarity in use, which although thought for an autonomous use, can be oriented towards a richer mix that satisfies the varying needs of the two users with a certain typological uncertainty.

 

Utilizamos cookies propias y de terceros para mejorar tu accesibilidad, personalizar y analizar tu navegación. Al continuar navegando consideramos que aceptas su instalación. Puedes cambiar la configuración u obtener más información en nuestra cookies policy